| 时间: 2023-05-04 | 次数: |
本团队立足于当前“洁净煤”“双碳”背景,围绕细粒煤高效分选技术及衍生的煤泥、煤矸石高值化利用技术进一步开展研究,2022年度取得主要研究成果如下:
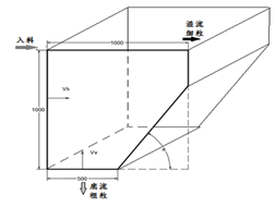
(1)揭示了细粒煤深锥形干扰沉降精确分级机理。①梯度流场是强化颗粒分级效果的有效途径,在恒定不均匀流场(梯度流场)具有强化粒群分散的作用,该流场中流速具有分区域的特点,通过控制不同区域流速有利于提高细粒煤的分级效果。②流场的给水由水平流和上升流共同控制,流场中存在一个速度峰值面,根据速度峰值面和流场速度分布可以将流场分成:溢流加速区(I区)、沉降脱泥区(II区)、溢流排粗区(III区)和沉降加速区(IV区),各区对颗粒的沉降发挥不同的作用。③粗煤泥分级系统中,临近分级粒度的颗粒的沉降过程具有显著的波动周期,且溢流颗粒和沉降颗粒的波动周期在小时间尺度上相似,大时间尺度上有明显差异。




图1 细粒煤深锥分级颗粒动态机制
(2)揭示了高硫煤物理化学组合法脱硫机理。原煤经浮选-氧化组合脱硫后,煤中无机硫几乎被完全脱除,脱硫效果较优,煤中黄铁矿的脱除过程如图所示。原煤先经浮选法脱灰脱硫,浮选精煤中黄铁矿脱除率为78.87%;浮选精煤进一步氧化脱硫,氧化剂将浮选精煤中的黄铁矿溶解,生成可溶性硫酸盐,过滤时随滤液脱除,煤中黄铁矿脱除率提高至95.77%。氧化过程对煤中灰分的影响较小,浮选-氧化产品灰分与浮选精煤灰分接近,脱灰率为70.95%。


图2 浮选-氧化法对煤中黄铁矿的脱除过程
(3)明确基于二孔径布风的煤炭干选强化机制。布风板是气固分选流化床中的重要部件,直接决定了床层的布风方式。本文通过数值模拟和试验分析相结合的方式研究了二孔径布风板对流化床层的流化质量和分选表现的影响,结果如下:当布风板孔径较大(即6mm)时,床层易出现沟流现象,同时随着布风板孔径的降低,床层的压降,孔隙率以及床层密度稳定性将随之提高,而由于中心大孔对气流的重新分配导致边壁效应降低,二孔径布风板(内孔径为4mm和外孔径为2mm)将进一步提高床层的稳定(其波动方差低至径向密度的0.071 g/cm3和轴向密度的0.06 g/cm3),促进煤炭颗粒在床层的密度离析过程(灰分离析度Sash=21.62%)。最终煤炭颗粒在拥有此二孔径布风板的流化床中进行分选,精煤产品的产率为54.83%,灰分为20.96%;矸石产率为45.17%,灰分为30.77%,可能性偏差低至0.105 g/cm3,说明此条件下流化床层能达到最佳的分选效果。

图3 两孔径分布板的气固分选流化床流化特性及分选表现
(4)构建基于高温活化技术的煤矸石基硅肥制备工艺。基于高温活化技术利用煤矸石、CaCO3以及玉米秸秆制备高效的煤矸石基硅肥,通过硅钼蓝分光光度法结合XRD以及FT-IR技术采用研究温度及混合比例对煤矸石有效硅溢出率的影响及活化机理。结果显示:当煅烧温度达到600℃后,煤矸石的层状结构受到了重大破坏,高岭石开始向偏高岭土等其他物质转变,但煤矸石中有效硅溢出率不高(低于10%);在单独添加CaCO3后,煤矸石中石英及白云母有关的峰强度随CaCO3含量的增加明显下降,但由于CaCO3在整个煅烧活化过程中主要起到了催化作用,仅在与煤矸石接触表面形成了较少的硅酸钙,有效硅溢出率仍处于12.60%以下;而单独添加玉米秸秆后,由于玉米秸秆煅烧后的氧化物参与了煤矸石煅烧过程中的化学反应,形成了霞石(K(Na,K)3Al4Si4O16)等硅酸盐,其有效硅的溢出率要明显优于CaCO3。当煤矸石、CaCO3以及玉米秸秆混合煅烧时,在CaCO3以及玉米秸秆的协同作用下,煤矸石中有效硅溢出率可高达22.97%,有害重金属浓度均低于0.025mg/L,符合农业硅肥的安全性要求,实现了煤矸石硅肥的高效制备。

图4基于高温活化技术的煤矸石基硅肥制备工艺
(5)研究高硫煤对实际金矿浸出液中金离子的吸附性能。①CHSC在硫代硫酸盐体系中对Au(S2O3)23−具有良好的吸附效果。但在吸附液中加入Cu(II)会明显抑制CHSC对金的吸附,其原因是Cu(II)的竞争吸附以及Cu(II)的氧化作用;NH3能促进CHSC对金的吸附,但当NH3浓度高于1 mol/L时,降低了CHSC的金吸附率。 ②Cu(NH3)42+络合离子的形成不仅影响CHSC对金的吸附,还会造成吸附后的金发生脱附现象。其原因是Cu(NH3)42+络合离子会将CHSC氧化,失去对金离子的还原作用。并且Cu(NH3)42+络合离子本身是金的氧化剂,吸附后的单质金在氧化作用下再次溶解。③利用外加电压,可以使溶液中Cu(NH3)42+转化为Cu(S2O3)35−,降低溶液的氧化还原电位,从而消除Cu(NH3)42+络合离子对吸附的负面影响,改善CHSC对铜-氨-硫代硫酸盐体系中金的吸附性能。吸附后溶液,在氧气的作用下,Cu(S2O3)35−被氧化成Cu(NH3)42+,在空气中自搅拌12h后,铜氨浓度恢复为初始的80%,最大限度实现了浸出液的循环利用。④离心沉降法可用于载金高硫煤的解吸工艺,根据物质密度的差异,在离心条件为:重液密度为2.3 g/cm3,转速为2000 r/min,离心时间为8 min下可实现96.31%的金解析率。

图5 高硫煤对实际金矿浸出液中金离子的吸附性能研究
2022年度,本团队立足于细粒煤高效分选技术及衍生的煤泥、煤矸石、高硫煤的高值化利用技术,在基础研究方面进一步探索了细粒煤流场调控分级机制、深入进行了新型浮选药剂的筛选及实验工作、明确基于二孔径布风的煤炭干选强化机制、构建基于高温活化技术的煤矸石基硅肥制备工艺、拓展了高硫煤及低品质煤在吸附领域中的应用探索。基于以上研究成果,发表SCI论文20篇,授权发明专利4项。

